Friedeburg:
Restaurant in TOP Lage in Friedeburg - Neubau
Objekt-Nr.: 267

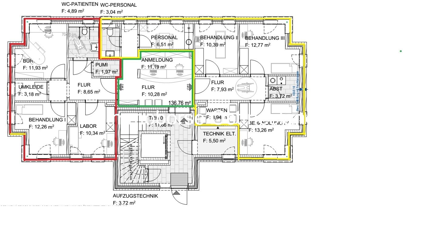
Grundriss Restaurant

Restaurant Terrasse 2

Ansicht Gebäude



Pacht:
3.000 €
Gesamtfläche ca.:
170 m²
Gastraumfläche ca.:
80 m²
Friedeburg - Ostfriesland - hier entsteht ein großzügiges helles Restaurant in einem Neubauprojekt in TOP-Lage. Einer baldigen Eröffnung steht nicht mehr viel im Wege.
Der Gastraum mit einer Größe von ca. 69 m² ist hell gestaltet und es finden ca. 50 Personen Platz um ihre Speisen zu genießen. Es gibt noch eine Option auf weitere 75,5 m² durch den Anbau eines Wintergartens. Aktuell steht eine 180 m² große Terrasse zur Verfügung (mit Wintergarten beträgt die Terrasse noch ca. 100 m²).
Es stehen folgende Räumlichkeiten zur Verfügung:
- Windfang mit Zugang zum Gastraum sowie zu den Toilettenanlagen
- Gastraum ca. 69 m²
- Tresen/ Service 10 m²
- Spülküche 16,5 m²
- Küche 23 m² (ein Fettabscheider wurde bereits installiert)
- Lager 3,5 m²
- Kühlung 2,86 m²
- Personalraum, Umkleide und Schleuse
Die Wände sind aktuell frisch tapeziert und gestrichen, beim Bodenbelag haben sie noch freie Wahl.
Sollte ein Wintergarten oder sonstiges erweitert werden, wird der Kaltmietpreis entsprechend angepasst.
Machen sie ihren Traum wahr und eröffnen sie ihr Traumrestaurant!
Qualität der Ausstattung: gehoben
Baujahr-Gebäude: 2025
Nebenfläche ca.: 90 m²
Nebenkosten: 1.100 €
Provisionspflichtig: nein
Kaution: 3 Kaltmieten
Anzahl Plätze Gastraum: 50
Terrasse: 1
Seniorengerecht: ja
Gastterrasse: ja
Zustand: Erstbezug
Die von uns gemachten Informationen beruhen auf Angaben des Eigentümers. Für die Richtigkeit und Vollständigkeit der Angaben kann keine Gewähr bzw. Haftung übernommen werden.
Wir weisen auf unsere Allgemeinen Geschäftsbedingungen hin. Durch weitere Inanspruchnahme unserer Leistungen erklären Sie die Kenntnis und Ihr Einverständnis.
Das könnte Ihnen auch gefallen
Büro oder Praxisräume im Erdgeschoss auch als Gemeinschaftsprojekt möglich
Gewerbe-Praxisräume 1. OG mit Personenaufzug in Friedeburg - Neubau
Gewerbe/ Praxisräume mit Personenaufzug in Friedeburg - Neubau

Melanie Wolzen
Frau Melanie Wolzen
Strooter Kampen 41 a
26446 Friedeburg
Büro: +49 4465 979929
Mobil: +49 172 5446266






