Friedeburg:
Großzügiges Einfamilienhaus mit Wintergarten und Garage
Objekt-Nr.: 270

Straßenansicht

Auffahrt und Garage

Ansicht

Ansicht Westterrasse

Herrlicher Sonnenschutz unter der Buche

Wintergarten Südterrasse

Blockhaus

Herzlich Willkommen

Helle und freundliche Diele

Großes Wohnzimmer

Kaminzimmer mit Ausgang auf die Westterrasse

Arbeitszimmer

Zimmer OG

Zimmer OG

Vollbad im OG















Preis:
309.000 €
Wohnfläche ca.:
175 m²
Grundstück ca.:
1.171 m²
Zimmeranzahl:
6
Wir machen ihren Wohntraum wahr!
Diese großzügige Immobilie auf einem schönen großen und ruhig gelegenen Grundstück steht bald für ihren Einzug bereit. Sie suchen Platz für die Familie, einen Ruhepool zum Entspannen nach der Arbeit, einen geräumigen Garten für die Erwachsenen und Spielraum für die Kids? Dann lassen sie sich diese Immobilie auf keinen Fall entgehen!
In Massivbauweise wurde das Gebäude 1978 mit einer Wohnfläche von ca. 150 m² erbaut, im Jahr 2009 wurde es um einen großen Wintergarten mit elektr. Beschattung und einer Fläche von ca. 25 m² erweitert.
Das Grundstück ist herrlich eingefriedet, eine wunderschöne Buche spendet Schatten in heißen Tagen, im hinteren Bereich ist ein Holzblockhaus mit Elektroanschluss.
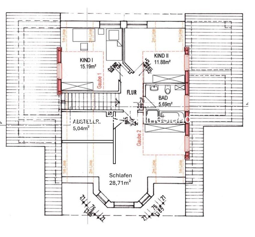
Im Wohnhaus befinden sich im Erdgeschoss eine große helle Diele, ein Gäste WC, ein Arbeitszimmer, ein großes helles Wohnzimmer, eine Küche mit angrenzendem Kaminzimmer, sowie ein Hausarbeitsraum und der Wintergarten. Über eine offene Holztreppe gelangt man ins Obergeschoss mit 3 Zimmern, einem Vollbad und einem Abstellraum.
Die angrenzende Garage ist durch ein elektrisches Tor befahrbar und bietet zusätzlichen Platz für eine Werkstatt. Im hinteren Bereich ist der Heizungs- und Anschlussraum, das Gas-Brennwertgerät (Marke Viessmann) wurde 2016 erneuert.
Haustyp: Einfamilienhaus
Provisionspflichtig: ja
Nutzfläche ca.: 37 m²
Bad: Dusche, Wanne, Fenster
Anzahl Schlafzimmer: 3
Anzahl Badezimmer: 1
Terrasse: 2
Gäste-WC: ja
Dachboden: ja
Kamin: ja
Wintergarten: ja
Keller: nein
Umgebung: Apotheke, Einkaufsmöglichkeit, Kindergarten, ruhige Gegend, Polizei, Spielplatz, Tennisplatz, Wald, weiterführende Schule, Wohngegend
Anzahl der Parkflächen: 1 x Garage
Möbliert: nein
Qualität der Ausstattung: normal
Baujahr: 1978
Verfügbar ab: sofort
Zustand: gepflegt
Bei Abschluss eines Kaufvertrages wird eine Vermittlungs-/ Nachweisprovision in Höhe von 3,5 % inklusive 19 % Mehrwertsteuer auf den Kaufpreis vom Käufer fällig.
Die von uns gemachten Informationen beruhen auf Angaben des Verkäufers bzw. der Verkäuferin. Für die Richtigkeit und Vollständigkeit der Angaben kann keine Gewähr bzw. Haftung übernommen werden. Ein Zwischenverkauf und Irrtümer sind vorbehalten.
Wir weisen auf unsere Allgemeinen Geschäftsbedingungen hin. Durch weitere Inanspruchnahme unserer Leistungen erklären Sie die Kenntnis und Ihr Einverständnis.
Das könnte Ihnen auch gefallen


















































